
Een woning die past bij hoe u wilt leven. Waar het licht goed valt, de ruimte klopt, en u elke dag denkt: hier hoor ik thuis.
Rust in het proces
Geen verrassingen
Ruimte die klopt
Niet door gebrek aan inspiratie, maar door te late keuzes. De grootste teleurstellingen ontstaan meestal pas na oplevering — als indeling, techniek of kosten niet meer te corrigeren zijn.
Routing, zichtlijnen en dagelijkse routines blijken na oplevering toch niet te kloppen — terwijl dit in het ontwerp te voorkomen is.
Als budget pas laat gekoppeld wordt aan ontwerpkeuzes, krijgt u bijsturen onder tijdsdruk. Wij willen dat eerder helder hebben.
Installaties en constructie moeten het ontwerp ondersteunen, niet dicteren. Dat vraagt integratie vanaf het begin.
Als details en omschrijvingen niet scherp zijn, gaat interpretatie het werk doen. Dat leidt vaak tot discussies of meerwerk.
Niet elke nieuwbouwsituatie is hetzelfde. Sommige mensen starten met een kavel, anderen met een bestaand perceel waar een woning op staat die mogelijk gesloopt wordt.
In beide gevallen helpt het om eerst scherp te krijgen wat hier logisch is. Daarom zetten we scenario's naast elkaar voor we gaan tekenen:


Wij ontwerpen nieuwbouw villa's en vrijstaande woningen vanuit ruimtelijke logica, technische samenhang en financiële beheersing. Van het ontwerpen van uw droomhuis tot begeleiding van de bouw. Daardoor wordt het proces rustiger, de uitvoering voorspelbaarder en het resultaat duurzamer.
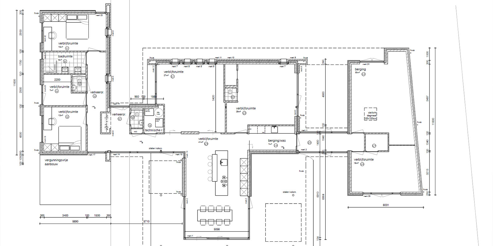
Indeling, routing, zichtlijnen en dagelijks gebruik. Het huis moet “kloppen” — elke dag opnieuw.
Zichtlijnen, zon en privacy bepalen de logica. Een sterke opzet voorkomt latere compromissen.
Constructie, installaties en comfort in balans. Techniek ondersteunt het ontwerp.
Ontwerpkeuzes vertalen naar bouwkosten. Zo sturen we op haalbaarheid, niet op hoop.
Kwaliteit zit zelden in méér vierkante meters, maar in beter ontworpen ruimte. Dit zijn de onderdelen waar wij in het ontwerp scherp op sturen.

Villa op maat
Rust in keuzes. Kwaliteit in details.
“€ per m²” vertelt weinig. De bouwsom wordt vooral bepaald door keuzes in volume, detaillering, materialen, installaties en complexiteit van de kavel. Wij koppelen die keuzes vroeg aan haalbaarheid.
Compacte vormen, heldere constructie en bewuste detaillering geven rust in kosten én uitvoering.
Niet duur vs. goedkoop, maar passend en onderhoudsarm. Details bepalen vaak een groot deel van de prijsvorming.
Energiezuinig en comfortabel vraagt integratie. Dan blijft techniek ondersteunend en voorkom je “achteraf-oplossingen”.
Een nieuwbouw villa ontstaat niet in een vacuüm. Het is de optelsom van wat mag (wet), wat kan (techniek) en wat slim is (budget & ontwerp). Ons platform koppelt deze drie werelden aan elkaar.
Directe toetsing aan bestemmingsplannen en DSO-logica via KavelArchitect.nl.
Volume-analyses en welstandsrisico in kaart gebracht door onze eigen engine.
Grip op bouwkosten en Programma van Eisen door de AI-logica van Brikxai.nl.
Krijg binnen 48 uur een oordeel over de haalbaarheid van uw kavel of villa-idee.
• 20+ jaar expertise
• DSO-data integratie
• Tactisch advies
Een gestructureerd proces met duidelijke momenten van keuze, toetsing en besluitvorming. Onze werkwijze is erop gericht om dit soort keuzes vroeg en zorgvuldig te maken. Lees meer over de volledige werkwijze. Wilt u de achterliggende visie zien? Bekijk Architectuur met Regie.
De basis om uw ambities en het beschikbare budget vanaf de start te aligneren.
Wensen & Levensritme
Een persoonlijk gesprek waarin ik uw wensen, stijl en levensritme leer kennen. Ter plaatse voel ik wat de kavel of bestaande woning vraagt. Het komt regelmatig voor dat deze fase uitwijst dat een andere route verstandiger is — of dat wij niet de juiste partij zijn. Ook dat is onderdeel van onze werkwijze.
Oplevering
Van wenslijst naar ruimtelijk concept dat de kavel optimaal benut.
Inspiratie & Concept
Ik vertaal uw woonwensen naar een krachtig concept dat functioneert én inspireert. Een ontwerp waar u blij van wordt en wat energie geeft! Duidelijke schetsen en 3D visualisaties helpen u het eindresultaat al te ervaren.
Oplevering
Kosten inzichtelijk maken voordat de details definitief worden vastgelegd.
Prijsvorming & Regie
De eerste set werkbare tekeningen gaat naar aannemers, constructeurs en installatie adviseurs. Ik regel de offertes en eventueel vooroverleg met de gemeente. Zo weet u tijdig wat het écht gaat kosten – en kunnen we bijsturen voordat het te laat is.
Oplevering
Maximale verfijning in techniek en materialisatie voor een uniek resultaat.
Detail & Verfijning
Uw nieuwe thuis krijgt vorm tot in detail. Ik zorg dat alles klopt: qua ruimte, uitstraling én afwerking. U krijgt een bouwrijp dossier waar aannemers direct mee aan de slag kunnen.
Oplevering
Zekerheid op papier voor een voorspelbaar bouwproces zonder concessies.
Zekerheid op Papier
Alles uitgebreid op papier: een complete set tekeningen, gedetailleerde omschrijvingen en heldere afspraken met de aannemer. Voor de bouw begint, weet iedereen exact wat er gebouwd wordt, hoe het eruit ziet en wat het kost. Geen verrassingen.
Oplevering
Regie op de bouw om de hoge esthetische standaard te waarborgen.
Kwaliteit & Controle
Ik ben wekelijks op de bouw, zodat u dat niet hoeft te zijn. Kwaliteitscontrole op elke fase, direct contact met aannemers, en uw belangen voorop. Rust en vertrouwen tijdens de realisatie.
Oplevering
Een selectie projecten waarin locatie, wensen en architectuur samenkomen.





Duidelijkheid werkt twee kanten op. Zo weet u snel of onze werkwijze bij u past.


Voor nieuwbouw gelden strengere eisen dan voor verbouw, mede door de Wet kwaliteitsborging voor het bouwen (Wkb). Deze regels zijn er voor uw bescherming, mits goed begeleid.
De Wkb vraagt om een onafhankelijke kwaliteitsborger die het bouwproces controleert. Dit betekent meer aandacht voor technische onderbouwing, dossieropbouw en het vastleggen van kwaliteit tijdens de bouw.
"De Wkb maakt nieuwbouw niet onnodig complex, maar vraagt om een doordachte aanpak waarin ontwerp, techniek en uitvoering vanaf het begin op elkaar zijn afgestemd."
Heldere antwoorden op de vragen die we in de oriëntatiefase het vaakst horen.

Vraag een gratis quickscan aan of plan een kennismaking. Dan weet u snel waar u staat — en welke keuzes echt verschil maken.
Direct contact
Heldere stappen
Doordacht advies
Ontdek meer over onze architectuurdiensten en bekijk projecten in verschillende regio's